Adam Kennedy are delighted to present for sale this charming two bedroom terraced house located on the popular Henderson Road, N9. Being offered vacant, this property is ready to move into and is perfect for first time buyers looking to step onto the property ladder with a property that already feels like home. This property also presents an excellent opportunity for investors , providing a strong rental property in a desired area.
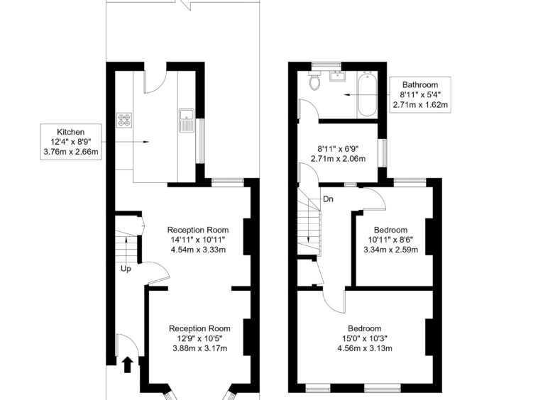
Upon entering the property, you are greeted with the hallway leading into the spacious through lounge. The through lounge is bright and inviting complete with laminate flooring throughout, and a large UPVC double glazed bay window, allowing natural light to enter the property. There is also a feature fireplace, creating a warm and cosy feel. High ceilings and generous floor space allow for both a comfortable lounge area and additional dining, ideal for relaxing, hosting or simply unwinding.
To the rear, the spacious kitchen is both practical and full of potential. Fitted with a range of wall and base units, generous worktop space and tiled splashbacks. It offers plenty room for cooking and storage. Natural light filters in from the rear aspect through a large UPVC double glazed window. There is direct access into the spacious rear garden making it perfect for outside cooking and hosting.
Upstairs leads into two well sized bedrooms. Both bedrooms feature a charming fireplace which adds a focal point to the room. Large UPVC windows allow for plenty of natural light to enter the bedroom, the bedrooms are also carpeted throughout. There is also a a three piece bathroom suite located upstairs comprising of a frosted UPVC double glazed window, a wash hand basin, bath and W.C.
The private rear garden offers a peaceful outdoor retreat and is perfect for outside hosting or just simply relaxing. There is also plenty potential to personalise.
Henderson Road is positioned within a popular area and is within easy reach of Edmonton Green, offering a variety of shops, supermarkets and other local amenities. Edmonton Green Station is also nearby, providing direct access into Central London, making it ideal for commuters. Multiple bus routes operate locally, providing links into the surrounding areas. The A10, A406 & M25 are all within close proximity. The area also benefits from a range of local schools, parks and green spaces, adding to its appeal for both owners and tenants alike.
Council Tax Band: C
Internal viewings are highly advised, please contact Adam Kennedy for internal viewings.
Property Documents